Thông tin sản phẩm
- Lượng nước phun ra cực mạnh.
- Động cơ 2 cực không đồng bộ.
- Động cơ mượt mà, êm ái, không gây tiếng ồn.
- Trục bơm được làm bằng thép AISI 416 không gỉ.
Máy bơm ly tâm trục đứng EBARA EVM 32 8-2F5/15 là loại máy bơm chuyên dùng trong các hệ thống bơm tăng áp, bơm lọc nước, bơm cấp nước sạch, tưới tiêu, công nghiệp tẩy rửa,...
Máy bơm ly tâm đa tầng có những tính năng ưu việt như lượng nước phun ra cực mạnh, đáp ứng mức cột ap của khách một cách tốt nhất cùng với đó động cơ mượt mà, êm ái, không gây tiếng ồn…

Máy bơm ly tâm trục đứng đa tầng EBARA CVM AM/12 siêu bền
Cấu tạo có độ bền cao, cấu tạo từ những vật liệu cao cấp: gang, thép AISI 416 không gỉ, Inox 304,... tránh ăn mòn bởi các chất hóa học, đồng thời máy được trang bị pha tụ điện giúp máy đóng ngắt khi nhiệt độ quá cao, giảm rủi ro khi vận hành.
Máy bơm ly tâm trục đứng nhiều tầng cánh Ebara được ứng dụng trong hệ thống xử lí nước, hệ thống giặt, hệ thống sưởi, điều hòa, thường được ứng dụng chủ yếu để bơm nước sạch cho các mục đích như hệ thống bơm tăng áp, bù áp, bơm nước tưới tiêu cho đồng ruộng, cung cấp nước các ngành công nghiệp hay ứng dụng cho hệ thống chữa cháy.

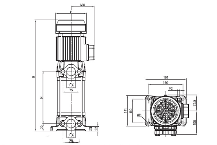
Bản vẽ sơ đồ máy bơm ly tâm trục đứng đa tầng EBARA EVM 32 8-2F5/15
Thông số kỹ thuật
- Mã sản phẩm: EVM 32 8-2F5/15
- Thương hiệu: Ebara
- Loại: Trục đứng đa tầng cánh
- Công suất: 15 KW/20HP
- Hút sâu: 8m
- Đẩy cao: 75-172 m
- Lưu lượng: 42-12 m3/h
- Ống hút xả: 80/80 mm
- Điện áp: 380 V/3pha/50hz
- Tần số: 50Hz
- Nhiệt độ tối đa của chất lỏng: 2 - 120 độ C
- Dải áp lực làm việc: 1-17 bar
- Cấp độ bảo vệ: IP55
